|
MECHANICAL
COMPONENTS
|
|
METAL
BOOGIE 3 SE:n muotoilu on sellainen, että suorakulmainen kotelo ei tule
kysymykseen. Toteutukseksi valittiin rakenne, jossa
kaksi ulkomuodon määräävää kehystä sidotaan
yhteen U-palkeilla. Näin saadaan hyvin tukeva rakenne.
|
|
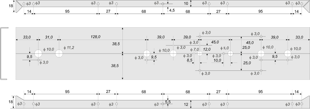
yläkehys,
1 mm:n sinkitty teräslevy
|
|
|
|
alakehys,
1 mm:n sinkitty teräslevy
|
|
|
|
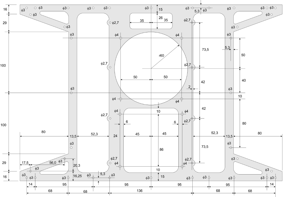
ylävahvike,
1 mm:n sinkitty teräslevy
|
|
|
|
alumiinipaneelien
kiinnikkeet, 3 mm:n rautaa
|
|
|
|
putkien
kaulus, 4 mm:n rautaa
|
|

|
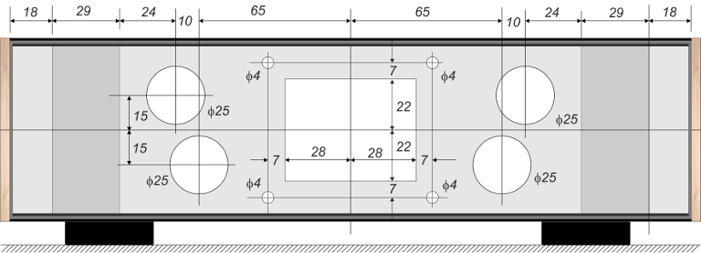
Vahvistin on varustettu anodi ja
suojahilajännitteitten puolijohderegulaattoreilla.
Häviöteho feteissä on niin suuri, että tarvitaan
jäähdytysprofiilit. Profiilit kiinnitetään yläkehykseen
2,5 mm:n ruuveilla. Profiilit korotetaan irti kehyksestä 3
mm:n lasikuitulaminaatista tehdyillä korokealuslevyillä.
Kahdella profiililla jäähdytys on ylimitoitettu. Ratkaisussa
onkin osittain muotoilullisia piirteitä. Profiilit ovat
peräisin Salora HIFI stereo 1800:sta. |
|
|
|
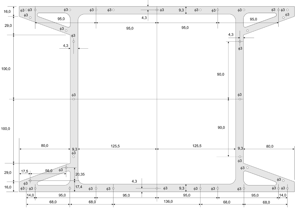
päätyjen
viistojen osien rakenne on kuvattu alla olevassa kuvassa
alinna. Viistoissa osissa uloinna on leppäpaneeli johon on
sovitettu rautakaulus rautaputkelle. Tämä ulommainen paneeli
on kiinnitetty alumiinipaneeliin ja sisinnä on
lasikuitupaneeli. Lasikuitupaneeli sitoo päätyputket
paikoilleen ja toimii verkkojännitteen eristeenä.
Lasikuitupaneeleita tarvitaan kaikkiaan neljä. Nämä ovat
mitoiltaan samanlaiset mutta vasemman päädyn paneelit ovat
punaisia ja oikean sinisiä.
|
|
|
|
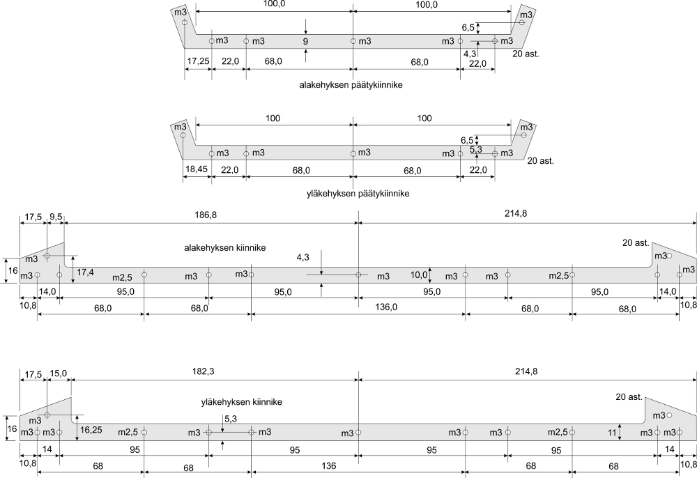
Alla on päätemuuntajan
korokekehä. Materiaalina on 3 mm:n rauta. Korokekehällä
saadaan riittävästi tilaa päätemuuntajan ja vahvistimen
asennuslevyn välille. 3 mm:n korokekehällä väliin jää 2
mm.
|
|

|